绿茵阁餐厅装修工程
| 项目名称 | 绿茵阁餐厅装修工程 | 行业属性 | 酒店/餐饮/会所 |
| 项目地址 | 南京市白下区汉中路143号环亚广场2楼12铺(上海路口) | 项目造价 | 68.8万 |
| 主关键词 |
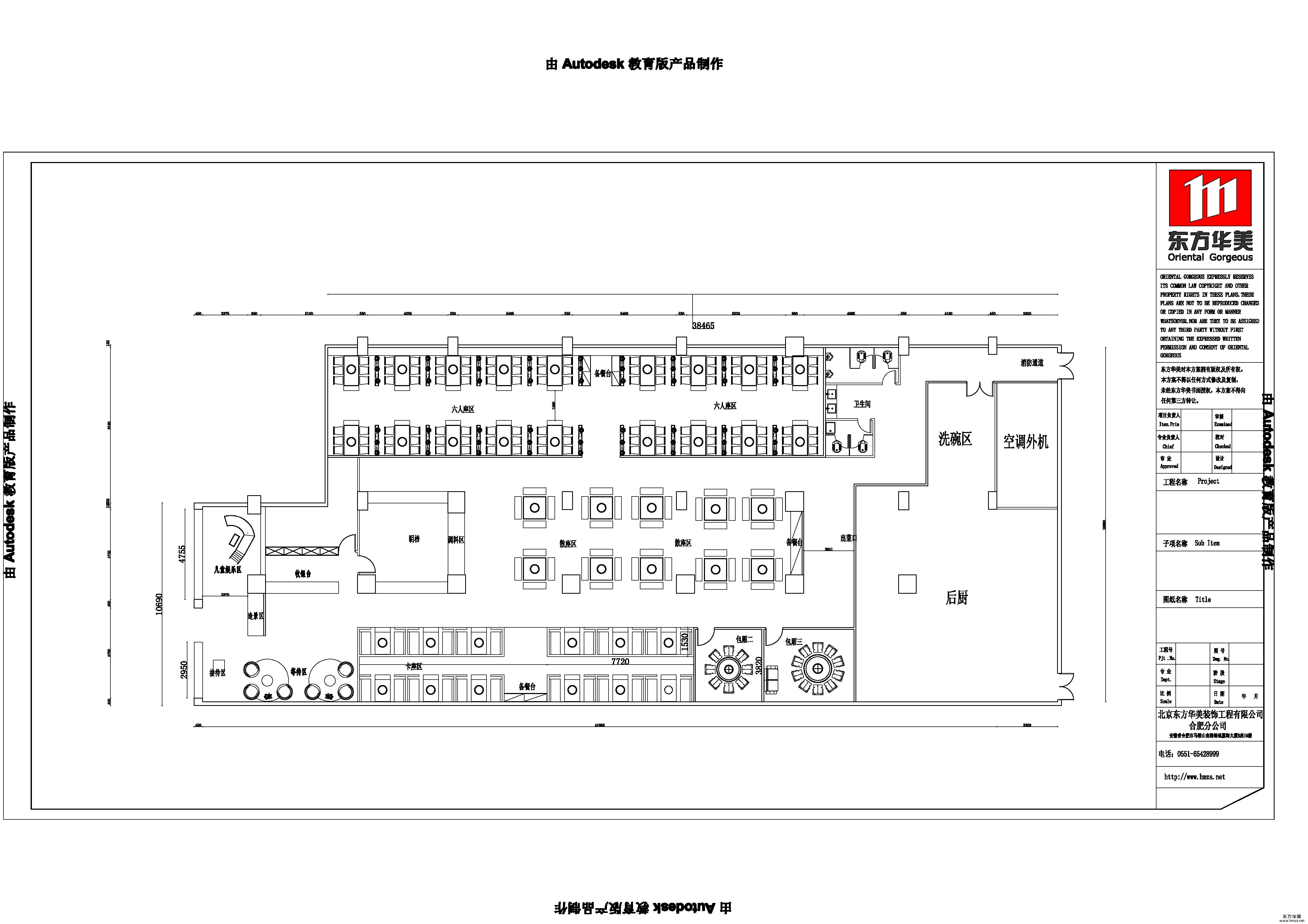
▄原建筑结构分析: 本方案装修设计上做到了细致入微,该餐厅的平面布置以入口出为中心将整个餐厅左右分隔开来,这样可以更好的安排顾客和餐厅人流导向,散座区的餐桌合理布局以致合理疏通人流量。设计师利用声、形、色等技巧,充分展现整体设计意图,最大限度吸引客人来店或入店,辅以各种待客技巧,实现客人消费。除此以外,在装饰拍配和风格上也是煞费苦心,运用了许多现代装饰的表现特点区烘托环境氛围。
▄设计需求: 该餐厅的平面布置以出入口为中心将整个餐厅左右分隔开来,这样可以更好的安排顾客和餐厅的人流导向,散座区的餐桌在设计时的合理布局下以致合理疏通人流量。水吧区的照明和软式搭配跨度比较大
▄设计风格定位: 将时尚感和复古的气质相结合,使得整个餐厅既高雅又不失时代感。


北京铸诚大厦办公装修工程
北京银河SOHO办公装修工程
301医院装修工程
